
KDW127/18B矿用隔爆兼本安型直流稳压电源(以下简称“电源”)可用于有瓦斯、煤尘等爆炸性危险场所,其外壳防护等级达到IP54,外壳Q235A钢板焊接再精加工成型,内外表面进行防锈、涂漆处理,隔爆面进行磷化处理。电源内部集成无锡煤科电器有限公司生产的高性能模块化的MKD-II-Q型输出本质安全型电源模块,本安电源模块输出具有双重化过压、过流、短路等保护。电源中的指示灯能实时显示电源的输出输入状态。备用电池采用体积小、容量大的磷酸铁锂电池,内部的BMS系统能对每节电池进行管理。
本电源输出本质安全型电源一路,有较高的带载能力,在煤矿井下给各种监控设备、传感器等本质安全型电路提供稳定的电源;本电源体积小巧,重量轻,装拆移位使用十分方便。
*内置磷酸铁锂锂离子电池,断电后可持续输出大于2小时(额定负载)。
★产品特征:
体积小,重量轻,模块化设计,使用维护方便。输出容量大,带负载能力强。带电池,提供不间断电源输出,多种电压输出可选。宽电压输入,适应能力强。
★使用环境条件:
1. 环境温度:0℃~40℃;
2. 湿度:≤95%(+25℃);
3. 环境大气压:86kPa~1l6kPa;
4. 无显著振动和冲击的场所;
5. 周围介质无腐蚀性气体;
6. 无溅水和淋水的场所;
7. 有瓦斯和煤尘爆炸危险的煤矿井下。
★型号命名:

★防爆型式及防爆标志
防爆型式:矿用隔爆兼本质安全型
防爆标志:Ex db [ib Mb] I Mb
★主要技术指标
电源输入:额定127V AC,波动范围:95V AC~242V AC。
保护方式:双重过压、过流保护,故障撤销后能自动恢复。
工作方式:不间断输出,内置磷酸铁锂锂离子蓄电池,断电后输出不小于2小时(额定负载)。
电源输出:一路本质安全型电源输出。
(1)供电电源
1.额定输入工作电压:127V AC;
2.交流电压波动范围:(95~140)V AC;
3.输入视在功率:≤80VA;
(2)电源输出参数
1.标称输出电压:18V
2.额定输出电流:900mA
3.短路电流:≤1000mA
4.过压保护值:≤18.4V
5.过流保护值:≤1000mA
6.输出电压偏离值:≤5.0%
7.源效应:≤5.0%
8.负载效应:≤5.0%
9.周期与随机偏移峰峰值:≤250mV
10.本安参数:Um:242V AC; Uo:18.4V; Io1:1.0A; Co:2.2uF; Lo:0.2mH;
★电气间隙和爬电距离
不同电位的裸露导体之间与外壳和接线导体之间的电气间隙,爬电距离应符合GB/T 3836.3-2021中4.3和4.4的要求和GB/T 3836.3-2021表1的规定;本安电路的电气间隙、爬电距离应符合GB/T 3836.4-2021表5的规定。
本安接线端子之间:电气间隙和爬电距离均≥2.0mm;
非安127V AC端子之间:电气间隙≥5.0mm,爬电距离≥8.0mm;
本安接线端子与非本安接线端子之间的距离≥50mm。
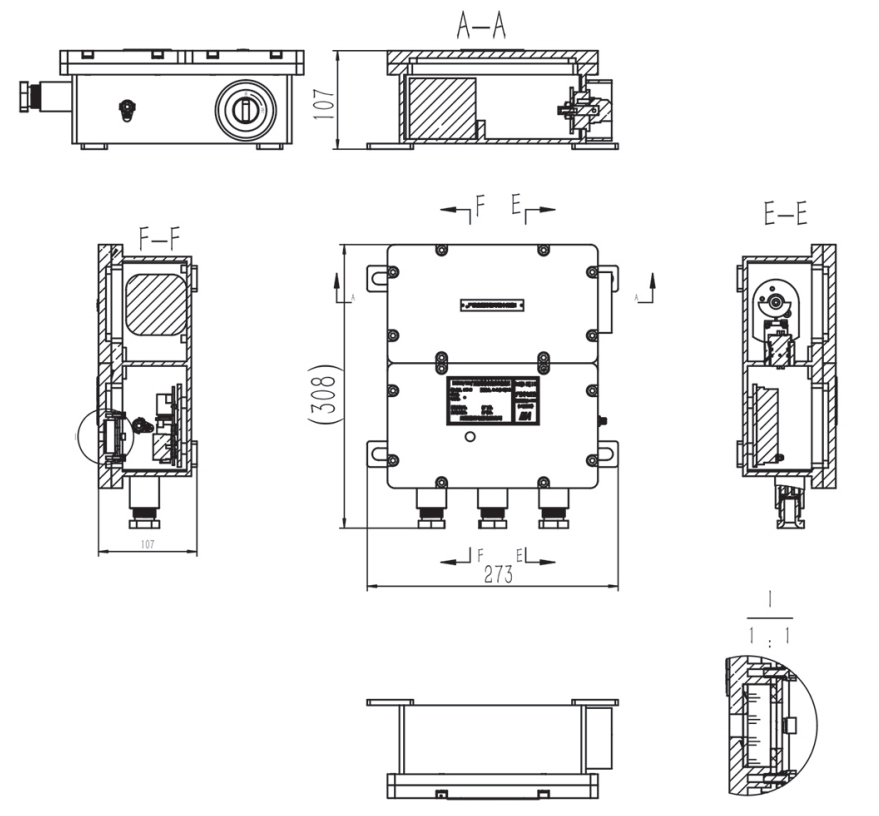
★外形尺寸、质量及材质
(1)外形尺寸(长×宽×高):308mm×273mm×107mm。
(2)重量:≈17.3Kg。
(3)外壳材料:Q235A钢。
电源安装尺寸如图所示:
